冈本app软件下载安装ios

EN

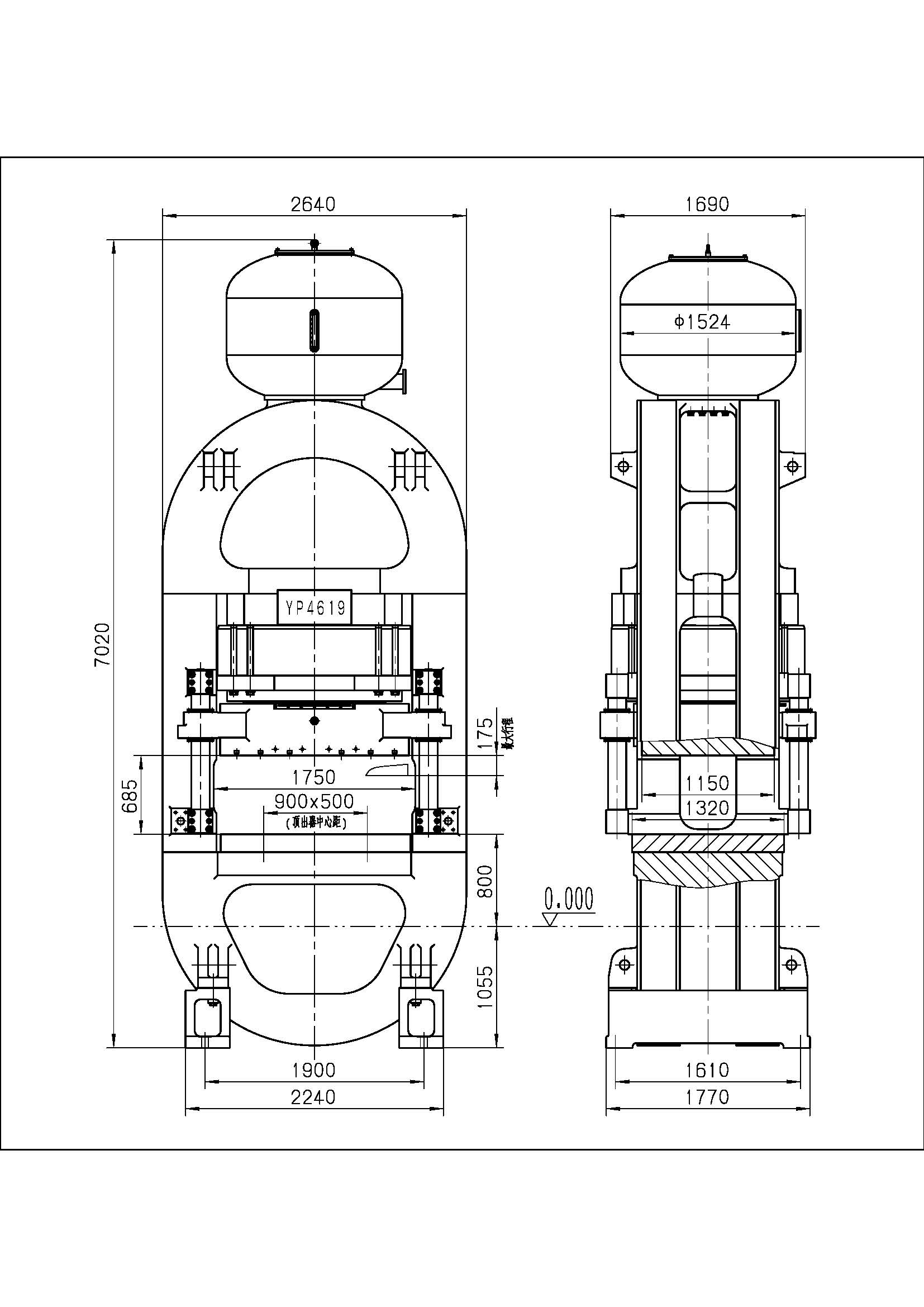
YP4619

常用壓制: 600*600mm、600*1200mm、800*800mm、900*900mm拋光磚、瓷質仿古磚、拋釉磚、(通體)大理石

常用壓(ya)制: 600*600mm、600*1200mm、800*800mm、900*900mm拋光(guang)磚(zhuan)、瓷質仿古(gu)磚(zhuan)、拋釉磚(zhuan)、(通體)大理石

返回列表

技術特點 技術參數 布(bu)局圖

1.主機結構采用新型預應力鋼絲雙纏繞結構,使預應力結構的梁體得到大大簡化,應力集中少,機架剛度足,具有超強的抗疲勞性能和承載穩定性。

2.動梁使用四桿導向結構,導向精度高,抗偏載能力更強。

3.頂置式充液油箱,裝油量大,氣壓波動小。

4.配備新型多缸板式伺服頂出裝置(恒力泰專利技術),定位精度高,可靠性好。

5.主缸采用經多年考驗的恒力泰外置式主缸結構(恒力泰專利技術),工作穩定可靠,故障率極低,并且便于維修。

6.采用新型下置式大通徑無簧充液閥(恒力泰專利技術),充、排液速度快,充液質量好,壓制速度快。

7.液壓系統采用諸多先進技術,如增速增壓系統,動梁位置閉環控制,主缸壓力閉環控制,伺服頂出裝置等,有效提高壓制速度、位置精度等綜合性能。

8.控制程序采用恒力泰新架構程序版本,控制的動作重復精度高,操控更靈活方便。

主要技術參數 TECHNICAL DATA UNIT YP4619
最大壓制(zhi)力 Max.Pressing Force kN 46000
最大頂出(chu)力 Max.Ejecting Force kN 275
動梁最大行程 Max.Plunger Stroke mm 175
動梁下平面(mian)與工作臺面(mian)最小間距 Min.Distance between Press Plunger and Table mm 510
動(dong)梁下平(ping)面(mian)與工作臺面(mian)最大間距 Max.Distance between Press Plunger and Table mm 685
左(zuo)右立(li)柱(zhu)間凈(jing)空(kong) Clearance between Columns mm 1750
動(dong)梁工(gong)作面前后寬度 Useful Width of Plunger mm 1150
最大填(tian)料深度 Max.Filling Depth mm 70
空(kong)循環(huan)次數可(ke)達 Working Cycles in idle Stroke mm-1 20
周期(qi)中加(jia)壓次數 Strokes Per Cycle times 2~5
主電機功率 Power of the Main Motor kW 132
系(xi)統裝油量 System Oil Capacity L 1630
系(xi)統(tong)耗(hao)氣量 Air Consumption m3/h 0.4
常溫水流量 Water  Consumption at 24℃ m3/h 18
主機重量 Weight of the Press Body t 99.5
  • 咨詢電話0757-87336633

    地址:廣(guang)東省佛山市(shi)三水(shui)中心科技工業區C區25號

    郵箱:hlm@hltpress.com